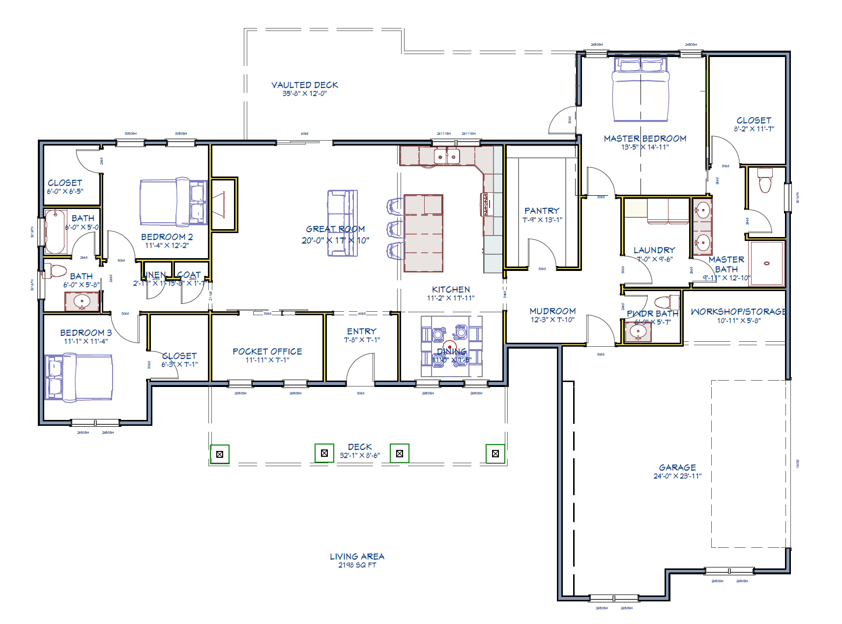
The Gable - 2,198sf

Back to Collection
Main Display
This is the caption for image 1